钛金属的密度为4.51g/cm3,高于铝,低于钢、铜、镍,但比强度高于金属材料。 钛合金阀门的耐腐蚀性强是由于其基体材料钛是一种非常活泼的金属材料,平衡电位较低,在介质中热力学腐蚀倾向较高。 事实上,钛在许多介质中都非常稳定,如氧化性、中性和弱还原性介质。 这是因为钛与氧有很大的亲和力。 在空气或含氧介质中,钛表面形成一层致密、附着力强、呈惰性的氧化膜,保护钛基体免受腐蚀。 即使由于机械磨损,它也会快速自我修复或再生。 这表明钛是一种具有强烈钝化倾向的金属。 当介质温度低于315℃时,钛的氧化膜始终保持这种特性。
为了提高钛的耐腐蚀性能,发展了氧化、电镀、等离子喷涂、离子氮化、离子注入、激光处理等表面处理技术,增强了钛氧化膜的保护作用,达到了理想的耐腐蚀性能反抗。 开发了钛钼、钛钯、钛钼镍等一系列耐腐蚀钛合金,满足硫酸、盐酸、甲胺溶液、高温湿氯气、和高温氯化物。 钛铸件采用Ti-32钼合金,对于经常发生缝隙腐蚀或点蚀的环境,采用Ti-0.3钼-0.8镍合金,或者钛设备局部采用Ti-0.2钯合金,这两种取得了非常好的用户体验。
新型钛合金可在600℃或更高的温度下长期使用。 钛合金TA7(Ti-5Al-2.5Sn)、TC4(Ti-6Al-4V)、Ti-2.5Zr-1.5Mo是超低温钛合金的代表,其强度随着温度的降低而增加,但它们的可塑性变化很小。 在-196-253℃超低温下保持良好的塑性和韧性,防止金属材料的冷脆性,是低温容器、储罐等设施的理想材料。

- 尺寸从 2” 到 8”(DN50mm 到 DN200mm)。
- 压力等级为 150LB 至 600LB(PN10 至 PN100)。
- RF、RTJ 或 BW 端。
- 聚四氟乙烯、尼龙等
- 驱动方式可以是手动、电动、气动或配备ISO平台。
- 铸造钛材料 B367 Gr. C-2,B367 Gr。 C-3,B367 Gr。 C-5,B367 Gr。 C-6,B367 Gr。 C-7等

加长杆便于操作,还可配备齿轮装置、电机执行器、气动或液压执行器,以实现更困难的服务。
分体式或三件式、分体式阀体和阀盖,适用于 12 英寸及小型。可轻松拆卸以维修部件。
标准填料多重 V-聚四氟乙烯填料与动载荷相结合,可在高循环和严酷的使用条件下保持填料压缩。 石墨填料用于高温场合。
防吹出阀杆设计是一种压力安全阀杆肩部设计,可防止在过压下发生故障。
防静电设计。 球体和阀杆/阀体之间始终保持金属接触,以释放使用过程中最终积聚的静电。
防火安全设计符合 API607 或 BS 6755,以确保其在发生火灾时的操作适用性。 如果主密封件被火毁坏,辅助金属对金属密封件可充当备用密封件。 为符合 API 607 标准而订购的阀门将配备石墨填料和垫片。


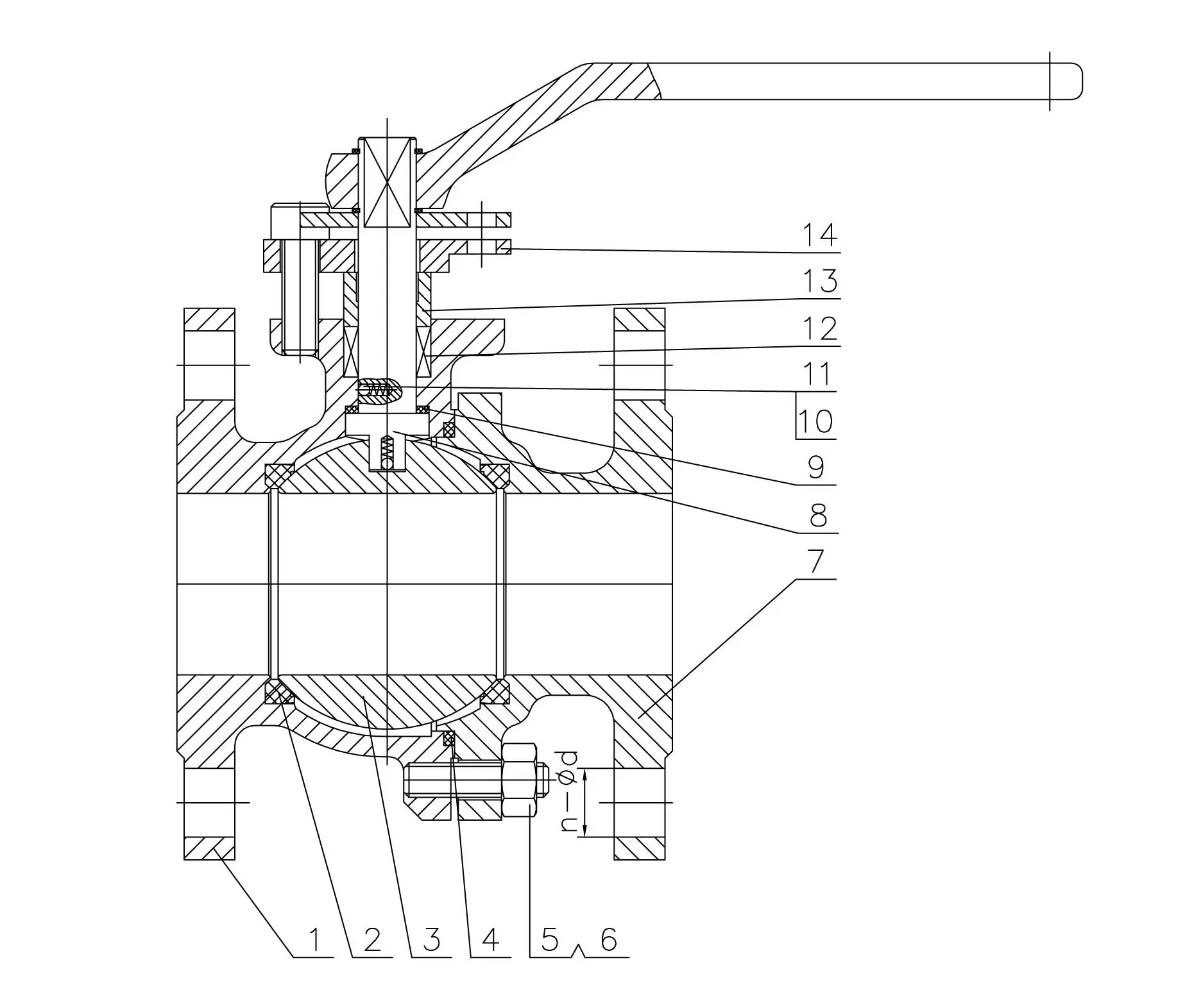
| 不。 | 零件名称 | 材料 | 
| 1 | 身体 | B367 组。 C-2 | 
| 2 | 座环 | 聚四氟乙烯 | 
| 3 | 球 | B381 组。 F-2 | 
| 4 | 垫片 | 钛+石墨 | 
| 5 | 螺栓 | A193 B8M | 
| 6 | 坚果 | A194 8M | 
| 7 | 帽子 | B367 组。 C-2 | 
| 8 | 干 | B381 组。 F-2 | 
| 9 | 密封圈 | 聚四氟乙烯 | 
| 10 | 球 | B381 组。 F-2 | 
| 11 | 春天 | 铬镍铁合金 X 750 | 
| 12 | 包装 | 聚四氟乙烯/石墨 | 
| 13 | 压盖衬套 | B348 组。 2 | 
| 14 | 压盖法兰 | A351 CF8M | 

钛合金球阀由于其优异的性能,在许多行业得到了广泛的应用。 以下是钛合金球阀的主要应用领域:
1、石油行业:广泛应用于石油开采、运输、炼油等过程中控制石油、天然气等介质的流动。
2、化工行业:用于控制化工生产过程中酸、碱、盐等各种腐蚀性介质的流动。
3、冶金行业:用于冶金生产过程中控制钢水、铁水等各种高温、高压、腐蚀性介质的流动。
4、电力行业:用于电力行业控制水、蒸汽等介质的流动,如锅炉给水系统、蒸汽系统等。
5、环保行业:用于环保行业控制各种腐蚀性介质的流量,如废水处理、废气处理等。
6、食品医药行业:用于食品医药行业,控制各种卫生级别要求的介质流量,如食品加工、药品生产等。
